Townhouse 10 rooms of 296 m² in Spinetoli (63078)
About this house of 10 rooms in Spinetoli (63078)
Soluzione Indipendente a Spinetoli, un'occasione da non farsi sfuggire !
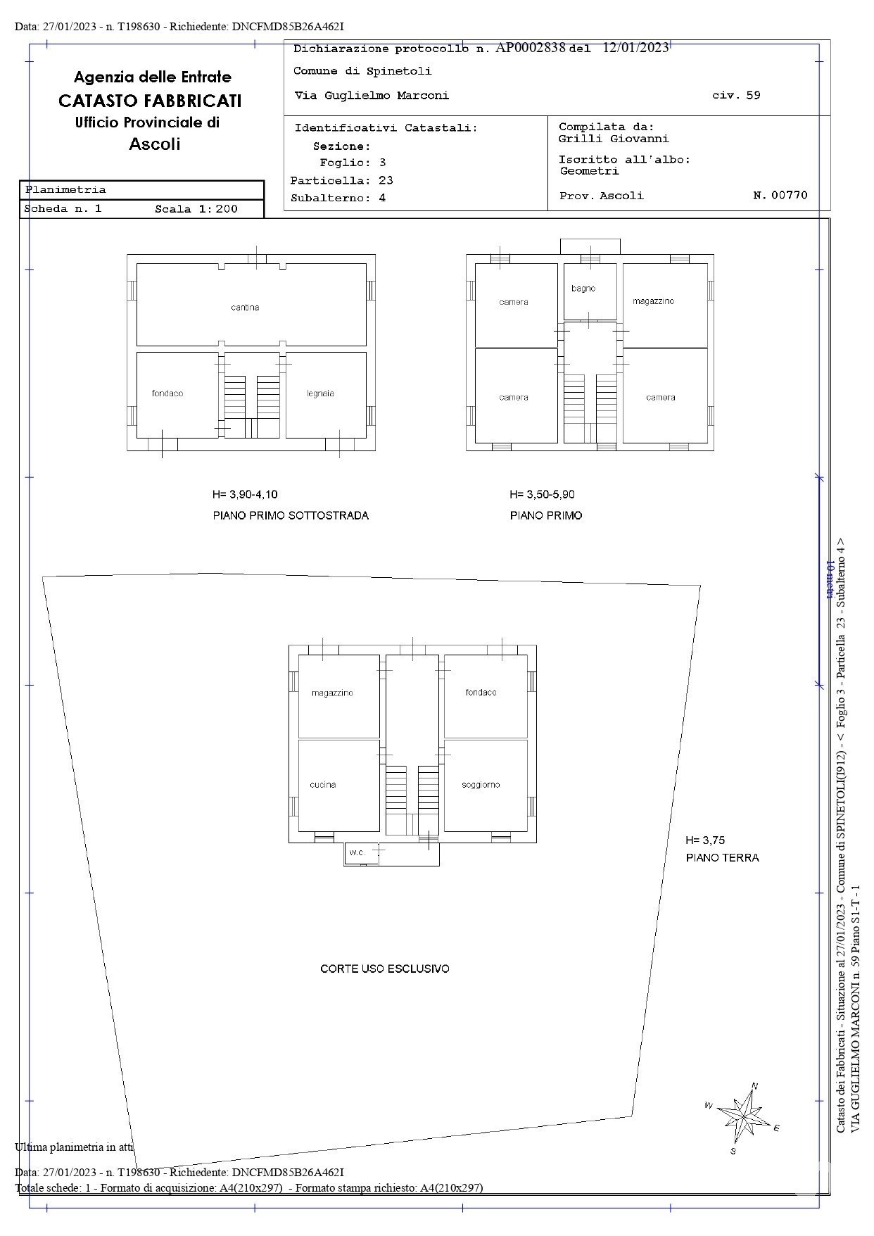
Posizionata lungo la strada principale e disposta su tre livelli, questa proprietà, da ristrutturare, rappresenta un'entusiasmante opportunità per una bellissima villa con giardino e garage. Situata a pochi passi dal centro di Spinetoli, la struttura può offrire le seguenti caratteristiche:
Piano Seminterrato: Oltre al garage è presente un grazioso spazio rustico attrezzato.
Piano Terra: Accessibile dalla strada principale, questo livello vanta un'ampia zona giorno e una deliziosa cucina abitabile, oltre ad uno studio e servizi.
Primo Piano: Dedicato a tre camere da letto, di cui una master suite con annesso bagno dotato di vasca. Le altre due camere condividono un comodo bagno con doccia.
Lo spazio verde che circonda tutta la villa si espande davanti il garage e rustico lascia ampio respiro e permette di passare delle festose giornate in compagnia degli amici.
Equipments
Other
This house is located in Spinetoli (63078).












