House 7 rooms of 130 m² in Casciana Terme (56034)
About this house of 7 rooms in Casciana Terme (56034)
Casciana Terme - Cevoli - Villa Singola
Rif: MIN Villetta “I Platani”
Nel bosco ogni vecchio gigante, sia platano, sia quercia, sia pino, ha intorno, ai suoi piedi, un giardino: di piccole piante. Son muschi, son felci, son fiori, e fragole rosse e lichene, cui l’albero antico vuoi bene, suoi teneri amor. E mentre la fronda superba protende più in su verso i cieli, ei pensa a quegli umili steli nell’ombra, tra l’erbe.
-Lina Schwarz-
C’è una casa dove gli alberi secolari non donano solo ombra, fanno compagnia, custodiscono storie, proteggono silenzi, abbracciano chi vive, proprio come in questa villa singola, ampia, autentica, affacciata ad un giardino rigoglioso dove la natura non è contorno… ma protagonista. I grandi rami si alzano fieri verso il cielo, ma ai loro piedi come nella poesia convivono profumi antichi e gesti d’amore magari accompagnati dalle grida schiamazzanti di bambini che giocano in tutta tranquillità. In questo scenario che incastonata questa perla d’abitazione, accogliente e pensata per chi desidera spazio, bellezza e intimità.
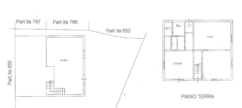
Al piano terra, si apre una zona relax maestosa, con volte in mattoni sabbiati che raccontano il calore della tradizione e una grande camino al centro della scena, perfetto per scaldare corpo e anima nelle fredde notti d’inverno. La cucina abitabile è generosa, pensata per accogliere sapori, risate, ricordi… e custodisce anche una comoda dispensa, preziosa alleata del quotidiano.�Completa il piano un bagno comodo e funzionale. Al primo piano, la zona notte si sviluppa in modo armonioso con quattro camere da letto, perfette per famiglie numerose, per ospiti o per chi desidera spazi per lavorare, creare, sognare. Ma è nel piano seminterrato, con affaccio diretto sul giardino, che la casa rivela un’anima conviviale: locali ampi e versatili che possono essere trasformati in una taverna suggestiva, luogo ideale per cene con amici, momenti di festa o semplicemente per ascoltare buona musica accanto a un bicchiere di vino.
A completare questa straordinaria proprietà, tre comodi annessi pluriuso: spazi perfetti per il bricolage, per il tempo libero, per coltivare passioni… o per custodire, in silenzio, gli strumenti della bellezza quotidiana; questa non è solo una casa, è un rifugio nel verde, un dialogo costante tra grandezza e delicatezza, tra il cielo e l’erba, tra la solidità del passato e il calore di chi ama la vita.
Equipments
Indoor
Outdoor
Other
Energy efficiency
Energy consumption :
This house is located in Casciana Terme (56034).





