Townhouse 10 rooms of 260 m² in Staffolo (60039)
Features
About this house of 10 rooms in Staffolo (60039)
Esclusiva iad -Italia, proponiamo In un perfetto connubio tra vicinanza al paese e massima privacy, all’interno del meraviglioso contesto paesaggistico della campagna Marchigiana nella località collinare di Staffolo, casale in muratura con bellissima corte privata alberata tra molteplici ulivi e piante da frutto di circa 3.300 mq.
Il casale con vista mozzafiato sulle colline circostanti non presenta segni di lesioni dovute al cedimento strutturale del terreno e non ha subito danni a causa dei recenti terremoti, è abitabile ma necessita di lavori di abbellimento a piacimento degli acquirenti.
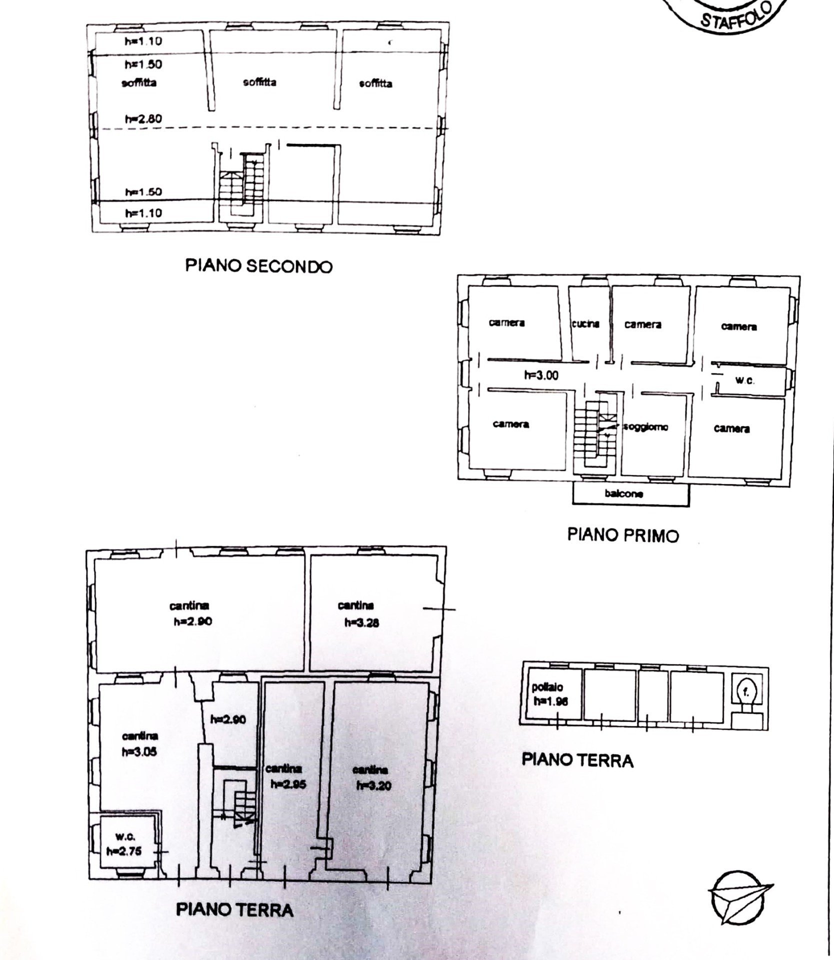
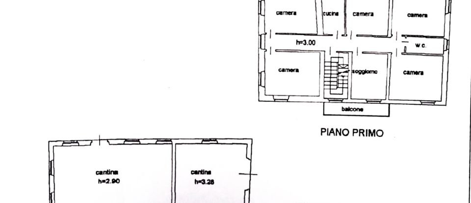
L’abitazione principale si sviluppa su una superfice di mq 260, al piano terra troviamo locali rimessa, cantine, garage.
Al primo piano per un totale di mq 140 circa, open space, sala cucina, quattro camere, bagno, grande terrazzo con recinzione da completare.
Gli impianti elettrici ed idraulici così come i termici sono funzionanti, all’esterno il deposito per il GPL.
All’interno della corte privata ci sono spaziosi annessi agricoli accatastati come cantine (C2) di 150 e 114 mq, molto alti da utilizzare come garage, depositi attrezzi agricoli, adiacente al casale anche uno spazioso pollaio in mutatura.
A pochi chilometri si trova la citta di Jesi, la posizione è strategica per raggiungere le più famose località balneari, come Senigallia, riviera del Conero, Porto Novo, Sirolo, Numana.
Per ricevere maggiori informazioni contattare Iad Italia Transazioni srl (Numero REA MI-2512981)
Equipments
Indoor
Outdoor
Other
This house is located in Staffolo (60039).














