House 5 rooms of 218 m² in Vigonza (35010)
Features
About this house of 5 rooms in Vigonza (35010)
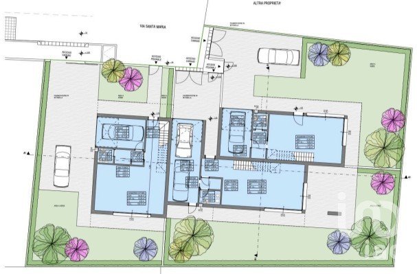
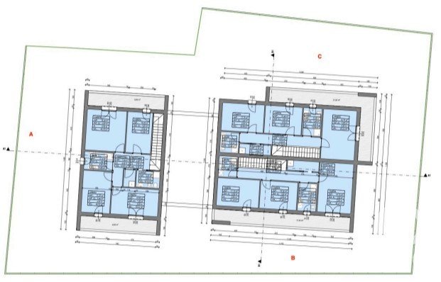
TRIFAMILIARE DI TESTA RESIDENZA CRISTALLO - PERAGA DI VIGONZA
CONSEGNA ESTATE 2026
In contesto residenziale tranquillo e ben servito, proponiamo in vendita una porzione di trifamiliare di nuovissima costruzione, realizzata con materiali e tecnologie all’avanguardia per offrire il massimo comfort abitativo.
L’abitazione si sviluppa su due livelli e si distingue per gli ampi spazi interni ben distribuiti, ideali per soddisfare le esigenze di una famiglia moderna.
🔹 Caratteristiche principali:
Classe energetica A4
Pannelli fotovoltaici
Riscaldamento a pavimento
Ottime finiture e materiali di alta qualità
Zona giorno luminosa e accogliente
Camere da letto spaziose
Bagni moderni e funzionali
Possibilità di personalizzazione degli interni
🌳 Completa la proprietà un giardino privato ideale per momenti di relax all’aria aperta.
Questa soluzione è perfetta per chi cerca un’abitazione nuova, efficiente, e pronta da vivere, in un contesto di pregio e a misura d’uomo.
La casa è così composta:
PIANO TERRA
- Soggiorno con angolo cottura
- Bagno
- Garage e posto auto esterno
PIANO PRIMO
- 2 camere da letto matrimoniali con terrazzo
-2 camere con terrazzo
-2 Bagni
- Ripostiglio
Contattaci per maggiori informazioni !
Equipments
Indoor
Outdoor
Other
Energy efficiency
Energy consumption :
Greenhouse gas emission :
This house is located in Vigonza (35010).



