

€750,000
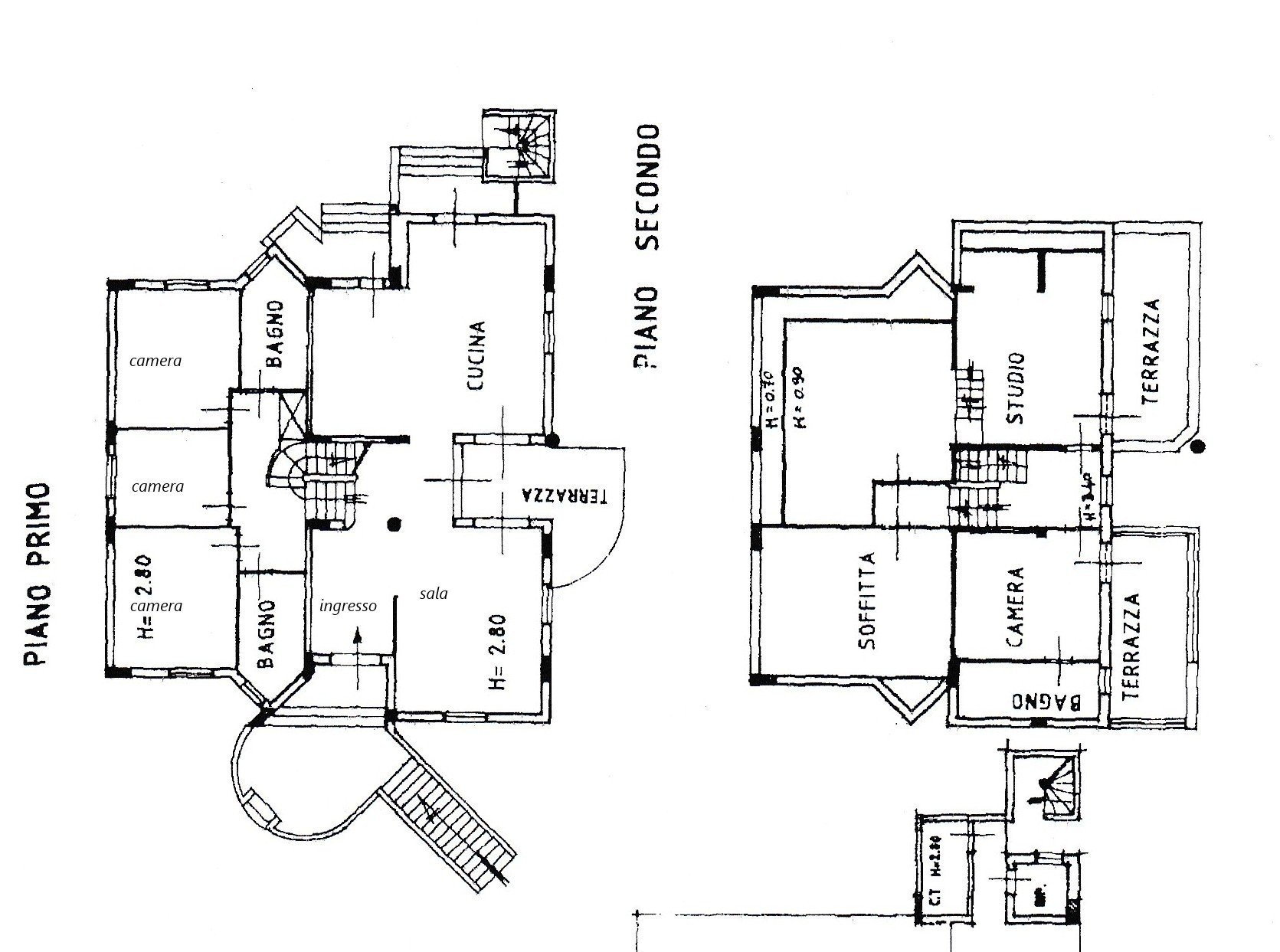
Belvedere Ostrense, In un perfetto connubio tra vicinanza al centro storico e massima privacy in posizione panoramica, proponiamo incantevole villa di circa 400 mq commerciali con parco privato e recintato con piante ornamentali e alberi ombreggianti. Dal 1992 è abitata dagli attuali proprietari, che al momento della costruzione hanno prestato la massima attenzione alla cura dei dettagli, sono degni di nota le finiture di pregio, dove si percepisce la massima cura e attenzione da parte di ingegneri ed architetti e al buon gusto dei proprietari. Appena si entra in casa si percepisce immediatamente un senso di accoglienza e calore donato dai materiali usati per le finiture come la pavimentazione in pregiato legno e monocottura, elementi di design che coniugano funzionalità ed estetica come la bella scala in legno a vista con gradini a toro smussato, la grande cucina e il camino centrale alla nella zona living con rivestimento in marmo nero marquina. Ad impreziosire tutti gli ambienti sono le numerose fonti di luce, finestre e porte finestre che accedono alle terrazze panoramiche con vista sulle campagne Marchigiane donando ad ogni ora del giorno un’ottima illuminazione solare in tutte le stanze. La villa è disposta su più livelli, al piano terra è già presente un piccolo appartamento con ingresso cucina, taverna con pavimenti in cotto antico, studio, camera e bagno, un grande garage di mq 45, al piano sottosuolo una grande rimessa o taverna. Al piano rialzato: l’appartamento principale con grande sala, open space, cucina abitabile, accesso al parco, 3 grandi camere, due bagni con accessori preziosi come i rivestimenti in cotto veneto. Al primo piano: due camere, bagno, e ampi spazzi sottotetto utilizzabili come locali multiuso, degno di nota e particolare bellezza sono i terrazzi a livello del tetto dove godere momenti di relax e una magnifica vista su tutta la vallata circostante. L’abitazione è dotata di allarme perimetrico e volumetrico, inoltre grazie ai pannelli solari da maggio ad ottobre la fattura del metano è quasi zero. Belvedere Ostrense è un piccolo borgo di origine medievale situato nelle Marche in provincia di Ancona, sorge su un colle dal quale si gode un ampio panorama, a poca distanza si raggiunge la città di Senigallia, Ancona, e la riviera del Conero località turistica balneare. Il paese offre servizi di trasporto pubblico e ogni tipo di servizio di prima necessità. Contattaci per maggiori informazioni o per fissare una visita! Per ricevere maggiori informazioni contattare Iad Italia Transazioni srl (Numero REA MI-2512981)
Ref: 150598
Energy performance diagnosis
E
Similar properties



