Exclusive
Shop / premises commercial of 300 m² in Castelfidardo (60022)
€360,000
€1,200/m²
300 m²
6 rooms
1 bathroom
About this shop/premises commercial at Castelfidardo (60022)
IL COMMERCIANTE
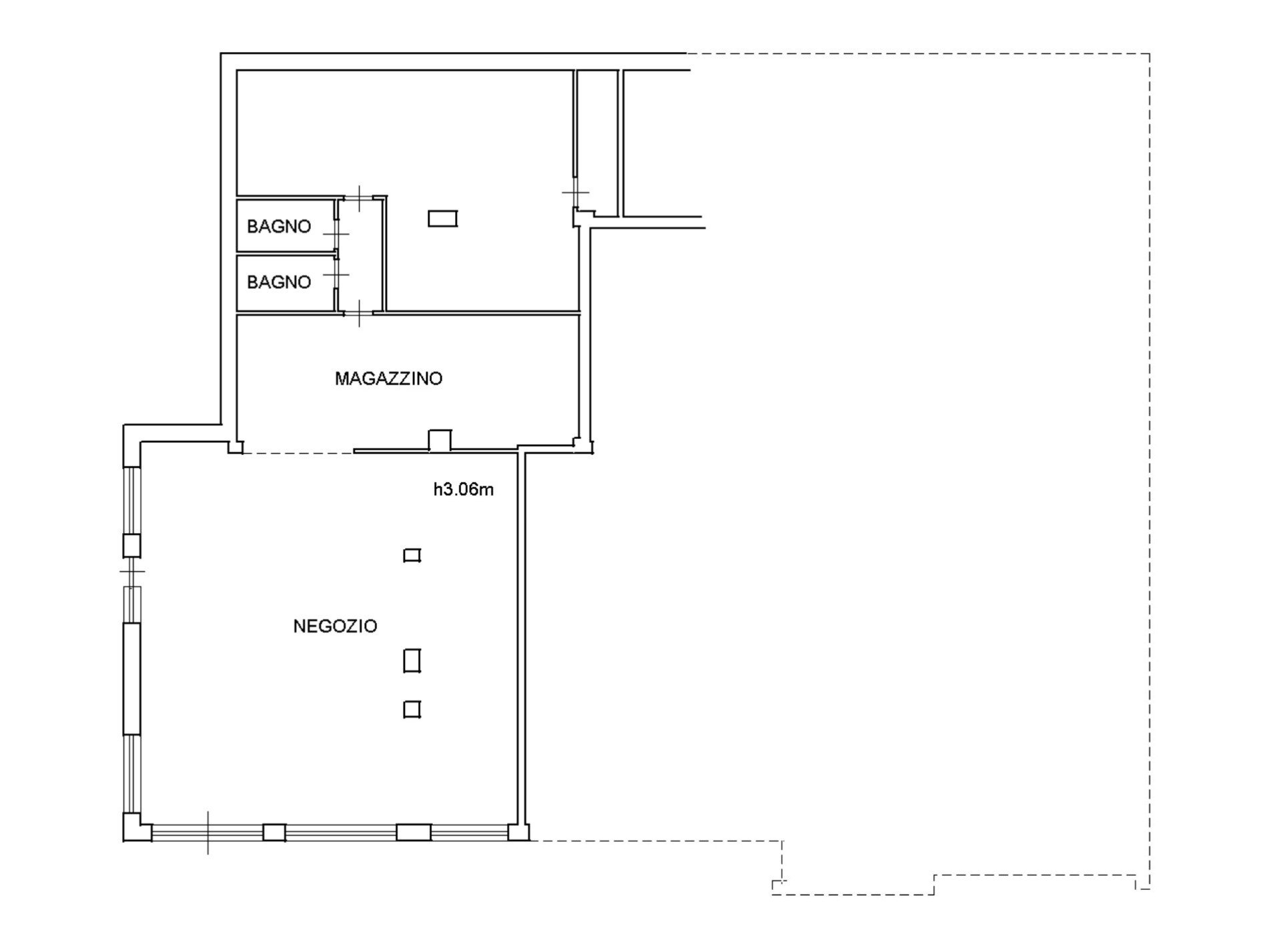
Ecco un locale commerciale degno di nota con i suoi soffitti accattivanti e una luminosità assoluta. Precedentemente utilizzato come negozio, oltre che teatro di fiorenti attività commerciali, oggi ritorna in vendita per dar vita a nuove e svariate potenziali realtà, grazie anche alla sua generosissima metratura.
CHIAMA PER TUTTE LE INFO E PRENOTA FIN DA ORA LA TUA VISITA!!
Reference: 87437
Equipments
Other
Year of construction: 1970
Where is the property located?
This shop/premises commercial is located at Castelfidardo (60022).
Popover 1
Popover 2
Popover 3
Popover 4

