Warehouse of 500 m² in Loreto (60025)
About this shop/premises commercial at Loreto (60025)
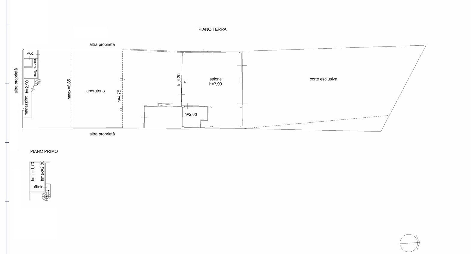
VETRINA SU STRADA AD ALTO PASSAGGIO – 500 MQ COMMERCIALI CON PARCHEGGIO PRIVATO
Cerchi la massima visibilità per la tua attività? In vendita spazioso immobile di 500 mq posizionato strategicamente sulla SS16 Adriatica, arteria principale di collegamento, a pochi minuti dall'uscita A14 Loreto/Porto Recanati.
Questa soluzione offre un'eccellente esposizione al pubblico e spazi interni flessibili:
Grande impatto visivo: Posizione "fronte strada" che garantisce pubblicità gratuita 24/7 grazie al forte passaggio veicolare.
Spazi interni modulabili: Ambiente open space con altezze fino a 6.85 mt, perfetto per allestire showroom luminosi o aree vendita di grande respiro.
Servizi completi: Include uffici amministrativi e servizi igienici già predisposti.
Comodità per il cliente: Piazzale esterno recintato di 470 mq, fondamentale per garantire comodo parcheggio alla clientela o area espositiva esterna.
Un investimento sicuro per chi necessita di farsi vedere e raggiungere facilmente. Destinazione d'uso flessibile con possibilità di conversione interamente commerciale.
Equipments
Outdoor
Other
Energy efficiency
Energy consumption :
This shop/premises commercial is located at Loreto (60025).









