Shop / premises commercial of 140 m² in Santa Maria di Sala (30036)
Features
About this shop/premises commercial at Santa Maria di Sala (30036)
Vieni a vivere il tuo nuovo negozio, nel cuore del paese
In una posizione che racconta storia e quotidianità, affacciato sulla piazza centrale – dove la vita scorre tra la chiesa, il comune e le attività del paese – ti aspetta un ampio negozio d’angolo di 140 mq, libero da subito e pronto ad accogliere la tua prossima idea.
Le due vetrine d'angolo si aprono sulla piazza, regalando ottima visibilità e continuità tra interno ed esterno: chi passa si ferma, chi entra rimane. La posizione offre un equilibrio perfetto tra discrezione e presenza: chi passeggia in piazza lo nota, chi vi entra scopre un ambiente spazioso.
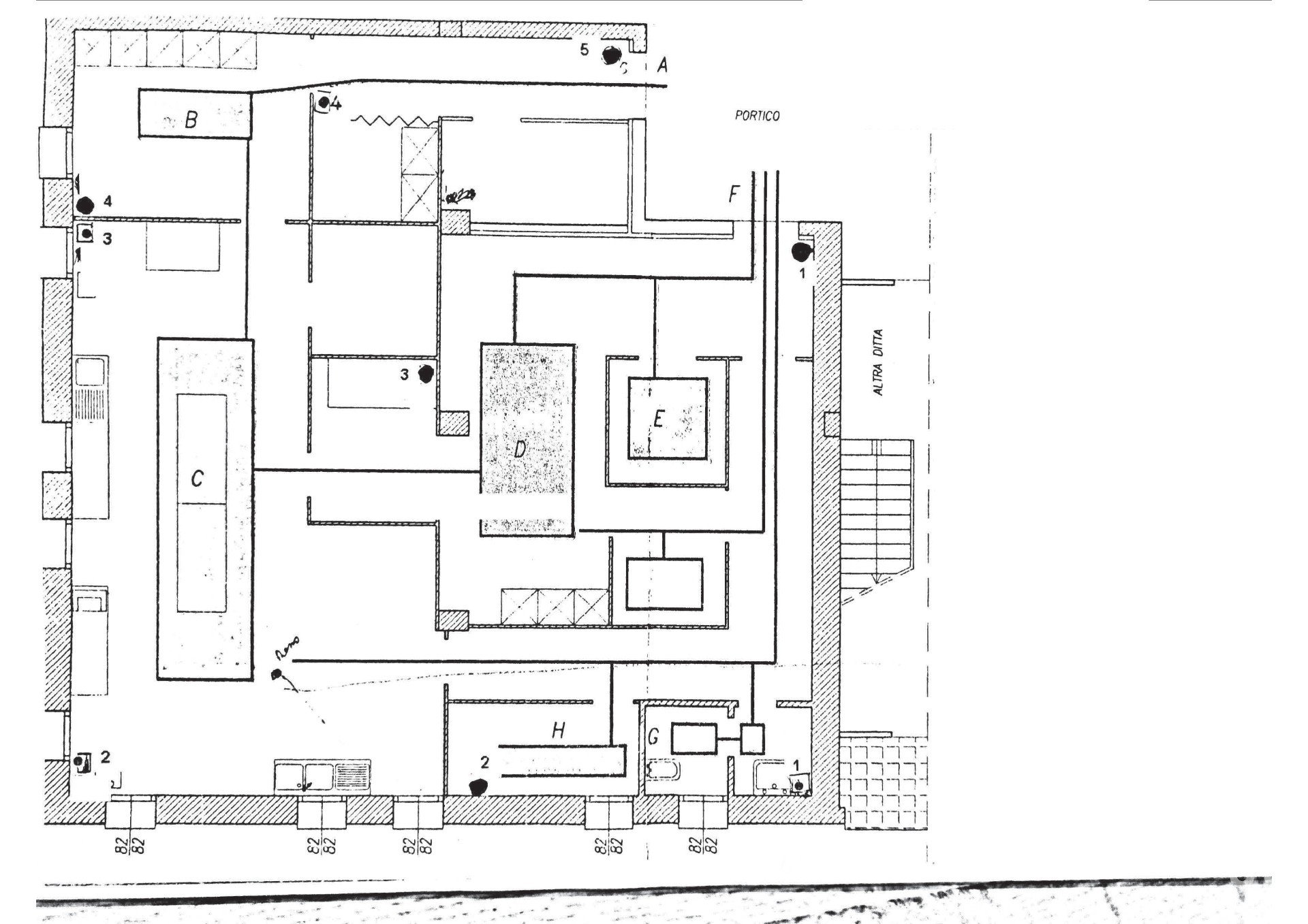
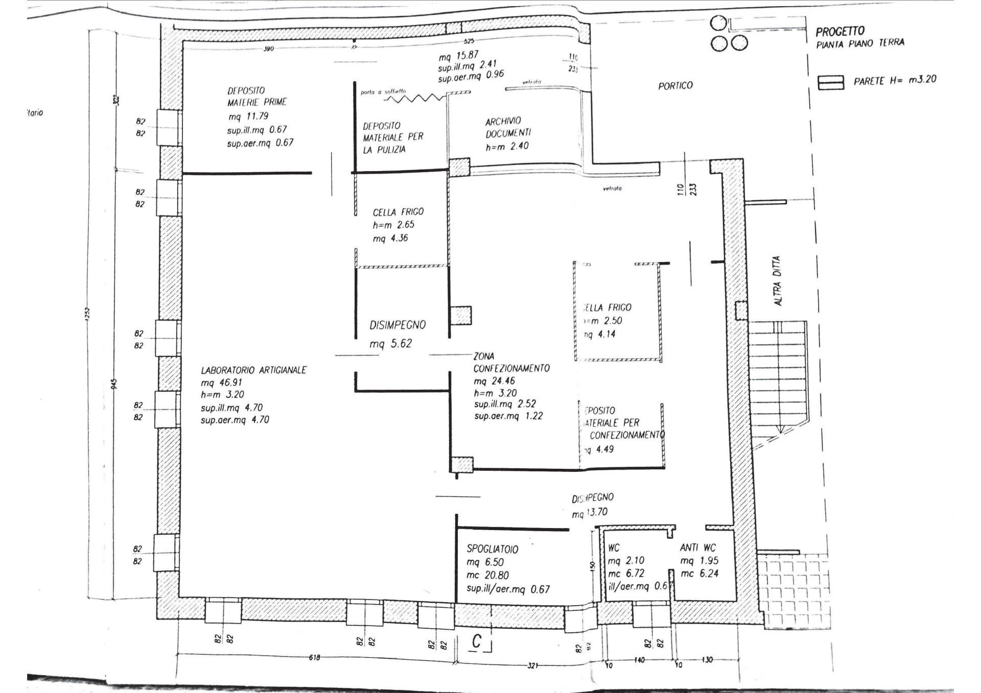
All’interno si apre un locale luminoso e regolare, che oggi si presenta come uno spazio estremamente versatile e adattabile a svariate tipologie di attività — commerciali, artigianali o di servizio. In passato utilizzato come laboratorio alimentare, si presenta ottimamente manutentato e in buone condizioni.
L’ambiente condominiale è curato, con negozi di qualità nello stesso stabile ed una clientela affezionata che anima quotidianamente la piazza.
Ampia possibilità di parcheggio proprio di fronte, così che ogni visita inizi con comodità e si concluda con soddisfazione.
La posizione è strategica: nel cuore del centro, ma anche a pochi minuti dalla SR515 Padova–Treviso, arteria vivace che garantisce passaggio costante e collegamenti rapidi con le principali vie di comunicazione.
Un luogo dove la luce, lo spazio e il contesto si incontrano per offrirti un’opportunità concreta, pronta per essere vissuta fin da subito.
Vieni a scoprire il tuo prossimo spazio di lavoro — dove il centro del paese diventa il centro delle tue idee.
**Classe energetica: D**
Equipments
Other
Energy efficiency
Energy consumption :
This shop/premises commercial is located at Santa Maria di Sala (30036).



