Two-room apartment of 65 m² in Desenzano del Garda (25015)
Features
About this two-room apartment in Desenzano del Garda (25015)
Desenzano Del Garda – appartamento bilocale con giardino. In zona tranquilla e comoda a tutti i principali servizi, proponiamo in vendita un elegante appartamento bilocale inserito in una palazzina moderna con ascensore e piscina condominiale. La posizione è strategica, con facile accesso alla tangenziale, all’autostrada e alla stazione ferroviaria.
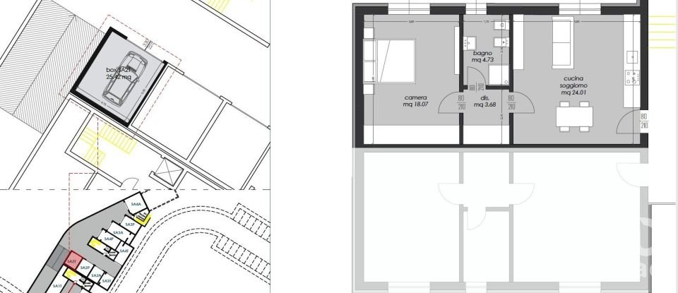
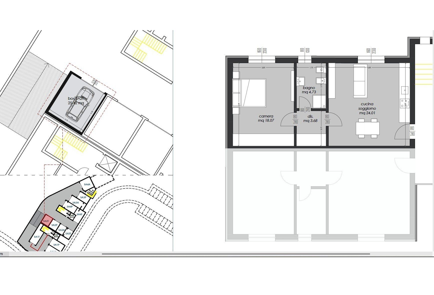
L’appartamento, di circa 60 mq, è arricchito da un giardino privato di 200 mq, perfetto per momenti di relax e convivialità all’aperto. Completa la proprietà un comodo box auto nell’interrato di circa 25 mq.
Composizione interna: ingresso dalle scale condominiali, luminoso soggiorno con cucina a vista, due bagni e una camera matrimoniale, oltre al giardino esclusivo.
Il prezzo si riferisce al singolo appartamento comprensivo di box auto, con oneri di acquisto a parte. La vendita è diretta da impresa edile, garanzia di qualità e trasparenza.
Classe Energetica A4 – 11,00 Kw/m²a
Un’opportunità ideale per chi sogna una casa moderna ed efficiente, con ampi spazi esterni e una piscina condominiale per vivere appieno le giornate sul Lago di Garda.
Le informazioni riportate sono corrette ma non costituiscono vincolo contrattuale.
Contattateci senza impegno per ricevere ulteriori dettagli o per prenotare una visita a questo appartamento a Desenzano del Garda.
Equipments
Outdoor
Other
Energy efficiency
Energy consumption :
This apartment is located at Desenzano del Garda (25015).




