Two-room apartment of 65 m² in Monte Porzio (61040)
€97,000
€1,492/m²
65 m²
2 rooms
1 bedroom
2 bathrooms
Features
Garden
Ground Floor
Air conditioning
About this two-room apartment in Monte Porzio (61040)
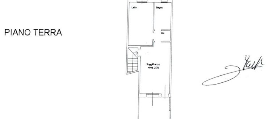
Nel comune di Monteporzio (PU) a 300 mt. dalla statale, vendesi appartamento in zona residenziale molto tranquilla così composto: ingresso, cucina abitabile con salone open space e bagno,scala in marmo che porta al piano inferiore dove troviamo la camera matrimoniale con bagno . Sono presenti inoltre due giardini,uno all'ingresso dell'appartamento e l'altro nella parte posteriore .
Per ricevere maggiori informazioni contattare Iad Italia Transazioni srl (Numero REA MI-2512981)
Reference: 128750
Equipments
Outdoor
Garage
Other
Year of construction: 2007
Number of floors in the building: 2
Ground Floor
Pad
Where is the property located?
This apartment is located at Monte Porzio (61040).
Similar properties
Popover 1
Popover 2
Popover 3
Popover 4


