Rustico 0 locali di 89 m² in Maissana (19010)
Su questa casa/villa di 0 locali a Maissana (19010)
📍 Ossegna (Maissana) – Rustico da ristrutturare con spazio esterno
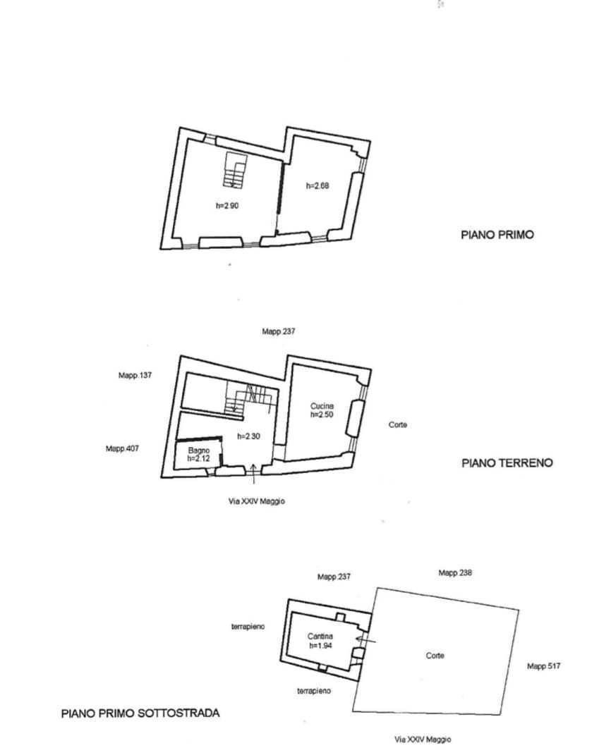
Proponiamo in vendita ad Ossegna, caratteristica frazione del comune di Maissana, immersa nella verde Val di Vara e situata a circa 30 minuti dal mare di Sestri Levante, un rustico di circa 85 mq disposto su tre livelli.
L’immobile è così composto:
Piano seminterrato: ampia cantina con spazi generosi.
Piano terra: grande zona da personalizzare, ideale per ricavare una zona giorno luminosa e accogliente.
Ultimo piano: due stanze da ristrutturare e rendere abitabili, perfette per la zona notte.
Il rustico necessita di una ristrutturazione completa interna. La copertura è a falde spioventi, con struttura lignea e tegole marsigliesi.
All’esterno è presente un ampio spazio all’aperto, ideale per trascorrere piacevoli momenti di relax nelle calde sere estive.
Ottima soluzione per chi cerca un progetto da personalizzare in un contesto tranquillo, naturale e a breve distanza dal mare.
Questa casa/villa si trova a Maissana (19010).




