Trilocale di 82 m² a Loano (17025)
Su questo trilocale a Loano (17025)
L'agenzia IAD è lieta di proporre in vendita, IN ESCLUSIVA, questa NUOVA OPPORTUNITÀ!
Sei alla ricerca di un'oasi di pace e comfort a Loano? Non cercare oltre! Ti presentiamo questo magnifico trilocale situato in una palazzina recentemente ristrutturata, sinonimo di modernità e cura dei dettagli.
L'immobile si trova a 900 metri dal mare in un contesto recintato, garantendoti massima privacy e sicurezza, e vanta un giardino condominiale, perfetto per avere del verde intorno a casa!
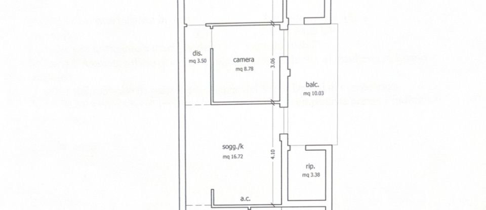
L'appartamento, con esposizione a ovest, gode di una luminosità eccezionale, soprattutto nelle ore pomeridiane. Al suo interno troverai ampi spazi ben distribuiti: un luminoso soggiorno con cucina, due accoglienti camere da letto, due pratici bagni, ideali per la comodità di tutta la famiglia o dei tuoi ospiti. Inoltre un comodo ripostiglio ti aiuterà a mantenere l'ordine.
Il riscaldamento autonomo ti permetterà di gestire al meglio i consumi e godere del massimo comfort in ogni stagione. Completa la proprietà un utilissimo balcone, perfetto per le tue colazioni estive o per goderti la brezza marina, e una cantina privata, ideale per riporre biciclette o oggetti di uso meno frequente.
Questa è l'opportunità che stavi aspettando per vivere la tua Loano in una soluzione abitativa di pregio, circondata dal verde e con tutte le comodità a portata di mano.
VUOI VENDERE CASA? AFFIDATI A NOI!
Cosa offriamo?
• pubblicità su TUTTI i portali immobiliari italiani ed esteri
• OPEN HOUSE a 5 stelle
• una rete con più di 18000 consulenti immobiliari a livello europeo
AFFIDATI A NOI PER UNA VALUTAZIONE GRATUITA DEL TUO IMMOBILE! NON PERDERE L' OCCASIONE DI VENDERE CON NOI IN TEMPI BREVISSIMI RISPETTO A TUTTA LA CONCORRENZA E AI MASSIMI PREZZI DI MERCATO!
LE NOSTRE CASE SONO TUTTE IN ESCLUSIVA, LE VEDI SOLO CON NOI!
Questa descrizione ha valore puramente indicativo e non costituisce elemento contrattuale.
Pertinenze
Altro
Classificazione energetica
Efficienza Energetica:
Questo appartamento si trova a Loano (17025).










