Four-room apartment of 170 m² in Palermo (90138)
Features
About this four-room apartment in Palermo (90138)
PRESTIGIOUS APARTMENT IN THE LIBERTÀ AREA WITH LARGE TERRACE
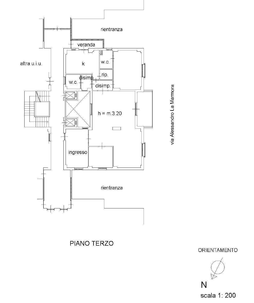
In Via Alessandro La Marmora 75, in the heart of one of the most prestigious areas of Palermo, just a few steps from Via Libertà, we offer for sale an elegant 170 sqm apartment on the 3rd floor of a refined building with two elevators and concierge service.
The property, recently renovated with high-quality finishes, features well-distributed spaces and excellent exposure, ensuring bright and airy rooms. A large entrance hall, also suitable as a study area, opens onto a spacious living room with a dining area.
The fine parquet flooring throughout the apartment (except for the kitchen) and the modern false ceiling with spotlights create a warm and relaxing atmosphere, making the home very welcoming.
The apartment includes a spacious master bedroom, a smaller bedroom, two large bathrooms, a laundry room, hallways, and a large kitchen with a regularly authorized enclosed balcony.
A key feature of this home is the large and comfortable terrace accessed from the living room, overlooking the elegant Via La Marmora—ideal for outdoor relaxation.
The property is equipped with a reinforced door, alarm system, air conditioning with Mitsubishi heat pumps, and independent heating system.
Comfort and elegance, a strategic location in one of the city’s most prestigious districts—this is the ideal solution for those who want to live in a refined, central, and well-connected setting.
Contact Information:
📞 +39 347 5886948
📞 +39 391 7062447
☎️ +39 091 6850433
📧 marina.simoncini@iad-italia.it
👉 DON’T MISS THIS OPPORTUNITY – Book your visit today!
Equipments
Other
This apartment is located at Palermo (90138).




