Exclusive
Other surface of 388 m² in Verona (37136)
€150,000
€387/m²
388 m²
5 rooms
About this shop/premises commercial at Verona (37136)
"UNDERGROUND"
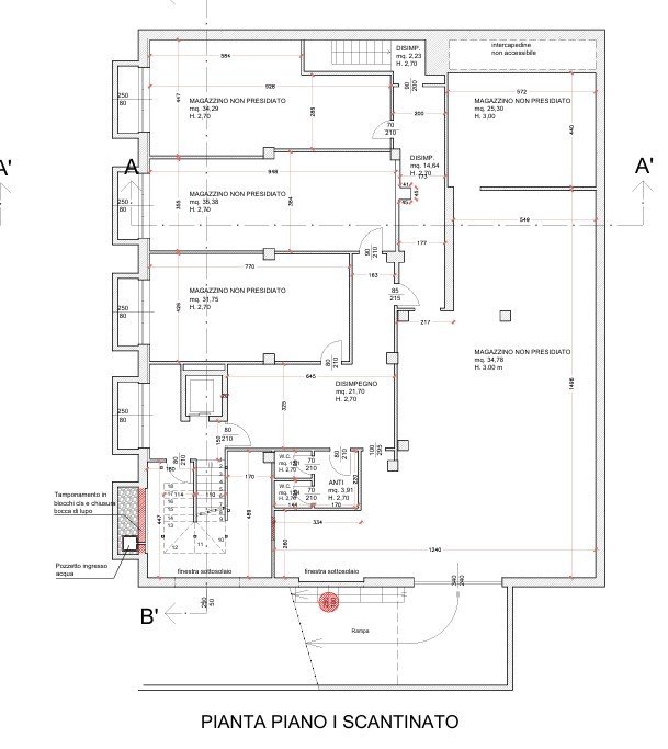
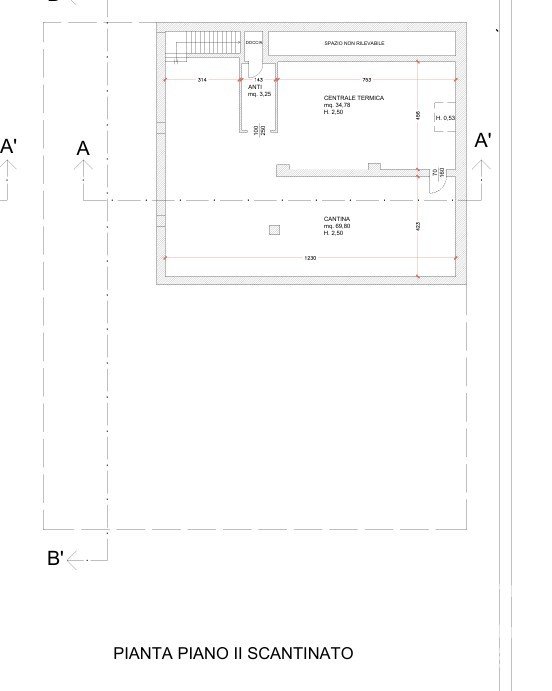
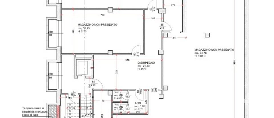
Proponiamo in vendita in uno splendido palazzo di uffici in ZAI , a soli 2 km dal casello di Verona sud in Via Salisburgo 12. Un interrato su due livelli di 388 mq. L'immobile è già suddiviso in vari magazzini oltre ad uno spazio in ingresso ideale per uso garage , il palazzo è dotato di ascensore appena installato e di accesso carraio anche per furgoni.
Sé pensi che questo locale sia perfetto per la tua prossima sede lavorativa chiamaci!!
Reference: 145913
Equipments
Outdoor
Garage
Other
Year of construction: 2025
Energy efficiency
Energy consumption :
Energy-efficient property Energy-inefficient property
Where is the property located?
This shop/premises commercial is located at Verona (37136).
Similar properties
Popover 1
Popover 2
Popover 3
Popover 4



