Baita / Chalet 4 locali di 90 m² in Castelli (64041)
Caratteristiche
Su questa casa/villa di 4 locali a Castelli (64041)
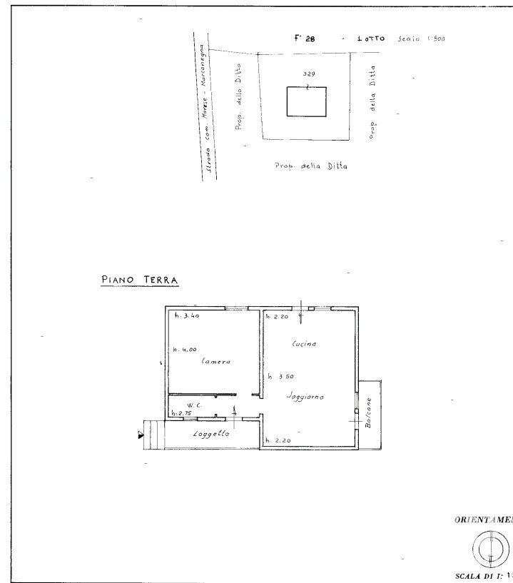
IAD Italia propone una stupenda baita/chalet site in Comune di Castelli (Te), lungo la strata provinciale 37, e precisamente uno fabbricato da cielo a terra ad uso civile abitazione di circa 70mq, con annessa corte/giardino esclusiva.
E composto di un ingresso, una cucina, un soggiorno, un bagno, una camera da letto letto matrimoniale quatro letti signgoli piano superiore.
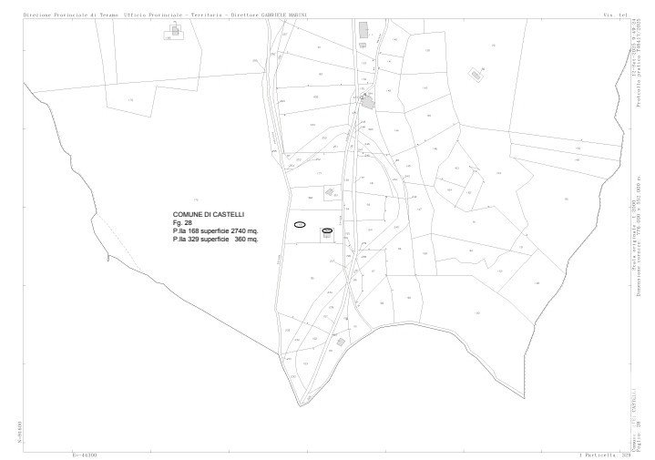
Circondano questa splendida casa in legno , una area agricola di pertinenza del fabbricato di cui sopra,confinante con la casa , censita in Catasto Terreni del Comune di Castelli (Te), seminativo di terza classe e di 2740mq....
Un'opportunità importante per gli amanti della vita in montagna o per chi desidera trascorrere un soggiorno alla scoperta delle montagne, delle loro risorse, sciare su tutte le piste circostanti, visitare questi magnifici luoghi ricchi di tradizioni, storia e natura... parliamo del GRAN SASSO...L'abitazione e' immersa nel verde e nella tranquillità ma comunque vicina ai punti di maggiore interesse della zona, dal centro del paese dove c'è' un bar, pizzeria, panificio e un ristorante di cucina tipica locale, centro di Castelli rinomato per la produzione di ceramiche artistiche, a circa 12 minuti in auto dal casello autostradale A/24 di Colledara, a circa 12 km dal santuario di San Gabriele ad Isola del gran sasso e ai principali luoghi d'interesse per poter effettuare escursioni a piedi o in bici, a circa 30 minuti di distanza in auto dal centro storico di Teramo e circa 45 minuti dalle rinomate località sciistiche di Prati di Tivo e Campo Imperatore, a circa 50 km dalle località balneari di Roseto degli abruzzi e Giulianova e a 80 km dall'aeroporto di Pescara.
Pertinenze
Esterno
Altro
Classificazione energetica
Efficienza Energetica:
Questa casa/villa si trova a Castelli (64041).









